A top-down view of a modern greenhouse with a glass roof, surrounded by landscaped gardens and pathways.

Bonsai Garden

Abu Dhabi

2018

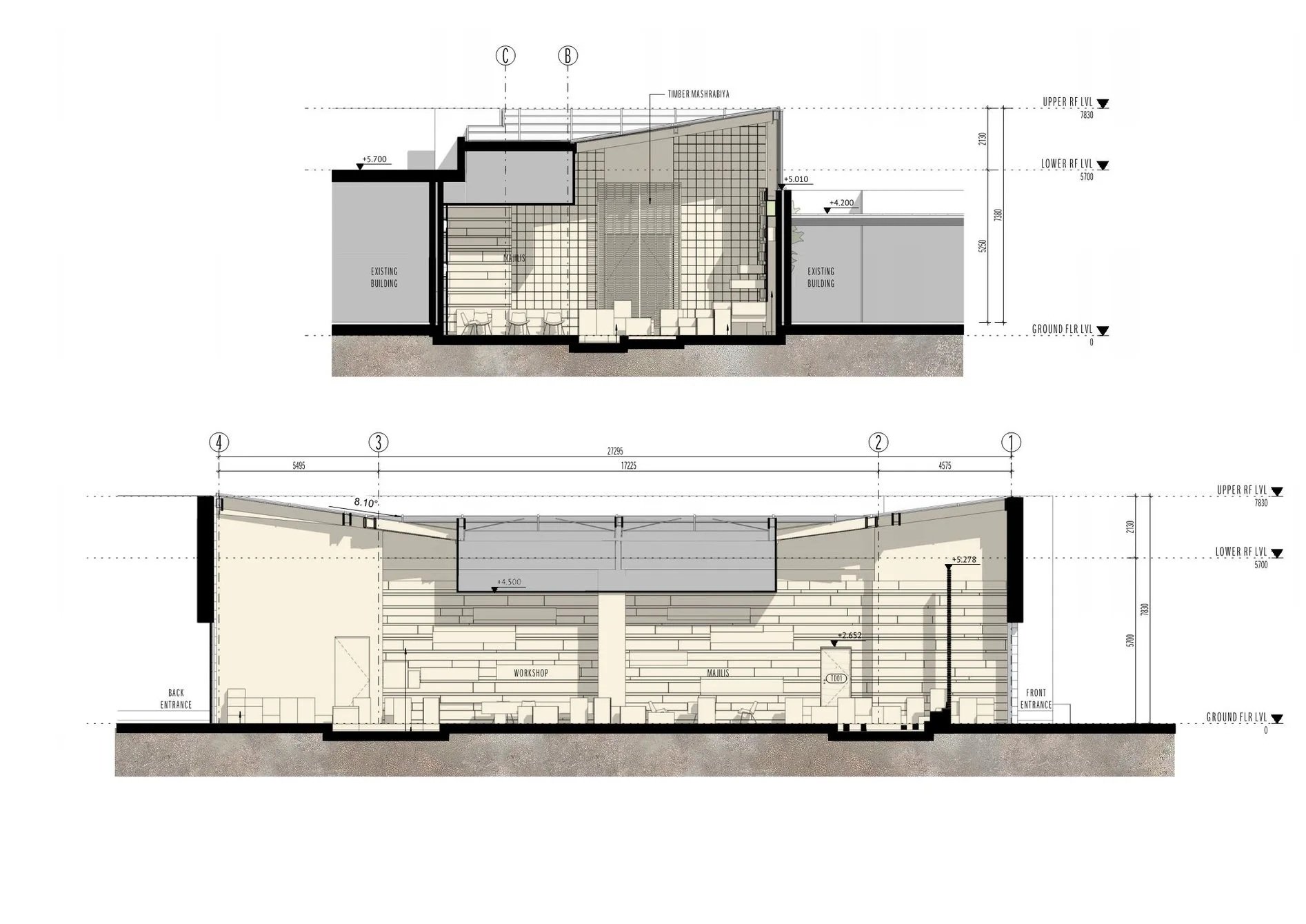
Located within a private villa compound in Abu Dhabi, the Bonsai Garden glasshouse occupies a narrow space between two existing buildings, serving as a controlled environment for a diverse collection of Bonsai trees. It also features a small workshop and a lounge area for the client and guests, offering both functionality and tranquility. The primary design challenges were to conceal the necessary ventilation systems without compromising the minimalist, zen aesthetic of the garden, and to engineer a fully self-supporting structure that places no additional load on the neighbouring buildings.